+380675488777

БІЗНЕС ЦЕНТР
МЕЖИГІРСЬКИЙ

Ваш комфортний офіс за 5 хвилин від метро

icon

400 метрів від станції метро Тараса Шевченка

icon

Поруч з набережною Дніпра та історичною частиною Києва

icon

Надійна охорона та система контролю доступу

icon

80+ наземних паркомісць для резидентів та гостей

icon

Доступ до офісу 24/7 з кількох окремих входів

icon

Відремонтовані офіси вже готові до вашого переїзду

Illustration

— ПРО НАС

МІСЦЕ ДЛЯ РОЗВИТКУ ВАШОГО БІЗНЕСУ

Бізнес-центр Межигірський розташований в Подільському районі Києва, всього за 10 хвилин від центру міста. Площа офісів варіюється від невеликих, близько 15 м², та аж до окремої будівлі чи корпусу. 
Саме тому Межигірський ідеально підходить для підприємств будь-якого масштабу:

    філій великих компаній;
    середнього бізнесу;
    стартапів, і т.д.
  • Бізнес-центр Межигірський знаходиться всього в 400 метрах від метро «Тараса Шевченка», поруч — набережна Дніпра та розважальна інфраструктура в історичній частині столиці.
    Межигірський складається з 7 автономних корпусів від двох до п'яти поверхів, які мають кілька окремих входів в різні частини будівлі. 
    Загальна площа бізнес-центру складає 10 000 м², висота стелі — 3.0 м. Наявне автономне опалення та сучасна система кондиціонування.
    У вартість оренди входить: електроенергія, вода, опалення, обслуговування електрика та сантехніка.

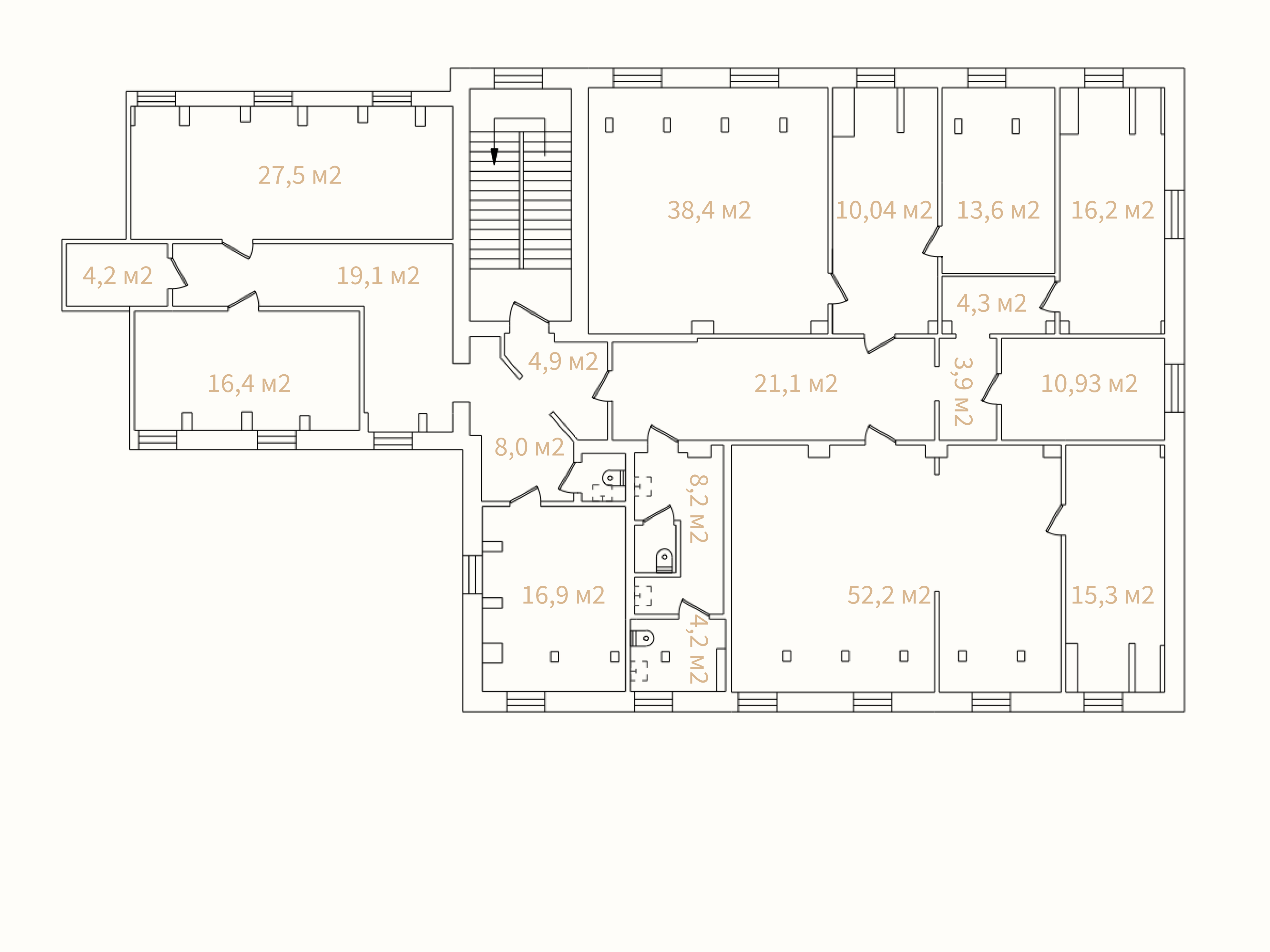
ПРИМІЩЕННЯ В ОРЕНДУ

Тисніть на план приміщення, щоб дізнатися більше. Якщо ви бажаєте отримати безоплатну екскурсію своїм майбутнім офісом — натискайте на кнопку "Замовити перегляд" та заповнюйте контактну форму. Чекаємо вас в гості!

ОФІС 156 М² | №6301, 3-й поверх.Готовий до заїзду.
У вартість оренди входить:електроенергія, вода, опалення, обслуговування електрика та сантехніка.
66 768,00 грн за місяць з ПДВ**без доплат

ЗАВАНТАЖИТИ ПЛАНУВАННЯ

ОФІС 63,8 М² | №6303, 3-й поверх.Готовий до заїзду.
У вартість оренди входить:електроенергія, вода, опалення, обслуговування електрика та сантехніка.
27 306,00 грн за місяць з ПДВ*без доплат

ЗАВАНТАЖИТИ ПЛАНУВАННЯ

​ОФІС 49,25 М² | №4207, 2-й поверх.Готовий до заїзду.
У вартість оренди входить:електроенергія, вода, опалення, обслуговування електрика та сантехніка.
21 029,00 грн за місяць з ПДВ*без доплат

ЗАВАНТАЖИТИ ПЛАНУВАННЯ

ОФІС 160 М² | №4202, 2-й поверх
Готовий до заїзду

У вартість оренди входить:
електроенергія, вода, опалення, обслуговування електрика та сантехніка.

68 480,00 грн за мicяць з ПДВ
*без доплат

ЗАВАНТАЖИТИ ПЛАНУВАННЯ

ОФІС 127,35 М² | №6302, 3-й поверх

Готовий до заїзду
У вартість оренди входить:
електроенергія, вода, опалення, обслуговування електрика та сантехніка.

54 505,00 грн за мicяць з ПДВ
*без доплат

ЗАВАНТАЖИТИ ПЛАНУВАННЯ

ОФІС 144 М² | №7201, 2-й поверх
Готовий до заїзду

У вартість оренди входить:
електроенергія, вода, опалення, обслуговування електрика та сантехніка.

61 632,00 гривень за мicяць з ПДВ
*без доплат

ЗАВАНТАЖИТИ ПЛАНУВАННЯ

ОФІС 234 М² | №2102, 1-й поверх
Готовий до заїзду

У вартість оренди входить:
електроенергія, вода, опалення, обслуговування електрика та сантехніка.

100 152,00 грн за мicяць з ПДВ
*без доплат

ЗАВАНТАЖИТИ ПЛАНУВАННЯ

ОФІС 180 М² | №2101, 1-й поверх
Готовий до заїзду

У вартість оренди входить:
електроенергія, вода, опалення, обслуговування електрика та сантехніка.

77 040,00 грн за мicяць з ПДВ
*без доплат

ЗАВАНТАЖИТИ ПЛАНУВАННЯ

ОФІС 125 М² | №1303, 3-й поверх
Готовий до заїзду

У вартість оренди входить:
електроенергія, вода, опалення, обслуговування електрика та сантехніка.

53 500,00 грн за мicяць з ПДВ
*без доплат

ЗАВАНТАЖИТИ ПЛАНУВАННЯ

ОФІС 195 М² | №6302, 3-й поверх
Готовий до заїзду

У вартість оренди входить:
електроенергія, вода, опалення, обслуговування електрика та сантехніка.

83 460,00 грн за мicяць з ПДВ
*без доплат

ЗАВАНТАЖИТИ ПЛАНУВАННЯ

ОФІС 316,57 М² | №2501, 5-й поверх
Готовий до заїзду

У вартість оренди входить:
електроенергія, вода, опалення, обслуговування електрика та сантехніка.

135 492,00 грн за мicяць з ПДВ
*без доплат

ЗАВАНТАЖИТИ ПЛАНУВАННЯ

ОФІС 110 М² | №3201, 3-й поверх
Готовий до заїзду

У вартість оренди входить:
електроенергія, вода, опалення, обслуговування електрика та сантехніка.

47 080,00 грн за мicяць з ПДВ
*без доплат

ЗАВАНТАЖИТИ ПЛАНУВАННЯ

ОФІС 200 М² | №3401, 4-й поверх
Готовий до заїзду

У вартість оренди входить:
електроенергія, вода, опалення, обслуговування електрика та сантехніка.

85 600,00 грн за мicяць з ПДВ
*без доплат

ЗАВАНТАЖИТИ ПЛАНУВАННЯ

ОФІС 250 М² | №3301, 3-й поверх
Готовий до заїзду

У вартість оренди входить:
електроенергія, вода, опалення, обслуговування електрика та сантехніка.

107 000,00 грн за мicяць з ПДВ
*без доплат

ЗАВАНТАЖИТИ ПЛАНУВАННЯ

— ДОВІРА, ПЕРЕВІРЕНА РОКАМИ

НАШІ РЕЗИДЕНТИ

Illustration
Illustration
Illustration
Illustration
Illustration
Illustration
Illustration
Illustration
Illustration
Illustration
Illustration
Illustration

— ДОВІРА ПЕРЕВІРЕНА РОКАМИ

НАШІ РЕЗИДЕНТИ

Illustration
Illustration
Illustration
Illustration
Illustration
Illustration
Illustration
Illustration
Illustration
Illustration
Illustration
Illustration

— РАДІ БУДЕМО ДОПОМОГТИ

МАЄТЕ ПИТАННЯ?

Напишіть, що вас цікавить і ми надамо відповідь.

Дякуємо!

Ми сконтактуємо з вами протягом 24 годин.

Can't send form.

Please try again later.

Натискаючи на кнопку, ви погоджуєтеся з Політикою Конфіденційності

Illustration

КОНТАКТИ

АДРЕСА

вулиця Межигірська, 87А,
Київ, 04080

НОМЕР ТЕЛЕФОНУ

+380675488777

E-MAIL

ten.rku%40tner.iyksrihyhzem

КОНТАКТИ

Illustration

АДРЕСА

вулиця Межигірська, 87А,
Київ, 04080

НОМЕР ТЕЛЕФОНУ

+380675488777

E-MAIL

ten.rku%40tner.iyksrihyhzem